技术中心
行业解决方案
随机文章选读
联系我们
  • 联系人:董先生
  • 联系电话:137-10902965

“干盘管”在电子洁净厂房中的应用

文章来源://m.capeel.com/  2017年11月22日  点击数:14180

0 引言 

    空气洁净技术(又称洁净技术或洁净室技术)最初是指以控制室内空气中悬浮颗粒物浓度为目标的相关技术,并以此来划分洁净度等级或级别。随着现代技术(航天技术、原子能技术、医疗、制药、生物,实验室,电子技术等)的迅速发展,特别是微电子工业的发展,对生产环境的洁净技术已被广泛应用,控制的对象也从单一的悬浮颗粒物扩展到有害气体,形成了当前比较完善的洁净技术体系。现代工业洁净室应用的代表是微电子行业,主要产品为大规模集成电路和平板显示器。半个多世纪以来,集成电路得到迅猛发展。微电子产品的迅速发展对传统的洁净技术提出了极大的挑战,同时也促进了现代洁净技术的发展。 

“干盘管”在电子洁净厂房中的应用

1 电子洁净厂房的概念综述 

    电子洁净厂房的组成、定义及分类 

    电子洁净厂房一般包括四个部分:洁净生产用房(通常兼有一般生产用房),空调冷冻机房,纯水和气体净化站,人员、物料净化用房。我国国家标准GB50072┸2001《洁净厂房设计规范》将洁净室定义为“空气悬浮粒子浓度受控的房间”。并要求“它的建造和使用应减少室内诱入、产生及滞留粒子。室内的其他有关参数如温度、湿度、压力等按要求进行控制”。这一定义与最新的ISO14644国际标准的定义是一致的。包括了洁净室以空气中悬浮粒子浓度为主要控制对象,空气洁净技术所依据的基本原理,不同的应用要求及控制级别对其它有关参数的控制要求。

    洁净室按不同分类方式有很多种。按洁净室用途分,可分为工业洁净室和生物洁净室;按气流组织形式分,可分为单向流洁净室、非单向流洁净室(又称乱流洁净室)、混合流洁净室、矢流(对角流)洁净室;按洁净室建造方式分,可分为土建式洁净室和装配式洁净室;按空气洁净设备的布置方式分,可分为全室型洁净室、局部型洁净室和结合型洁净室。  

1.2电子洁净厂房的特点 

    电子洁净厂房在工艺、维护结构和空调系统气流组织上都有其独有的特点: 

1.电子洁净厂房有其特定的工艺生产特点: 

    分类众多,有集成电路生产,平面显示器生产,硅材料生产,光纤生产,制卡业,表面贴装,分离器件生产,整机组装生产,自控元器件生产等等。冷负荷比其他行业的洁净室大很多。单位冷负荷达400w/m2~500 w/m2很常见。由于冷负荷大,一般情况下,冬季也需要供冷成为电子行业特点。 

2.维护结构要求严密性非常高,并且要求结构尽量不产生尘、不积尘。目前,洁净厂房的围护结构均为夹心彩钢板,夹心层为岩棉、铝蜂窝、纸蜂窝、聚苯、聚氨酯等,根据厂房性质

和业主要求进行选择。采用上述结构后,洁净室的绝热性将大大加强,外界的热量很难通过围护结构进入室内,同时室内的热量也很难通过维护结构传出; 

3.循环风量大,气流分布要求均匀。洁净室的洁净度是由经过三级过滤(初、中、高效过滤器)的洁净空气来稀释室内被污染的空气或利用活塞效应用洁净空气把被污染的空气挤压出洁净室的方法而达到不同洁净度的,因此洁净空调系统的风量和气流组织形式是保证达到洁净度的关健,1.非单向流洁净室一般适用于6、7、8、9级(也就是原美国联邦标准209E千级、万级、十万级),洁净度要求不高的洁净室是用稀释的方式来达到一定的洁净度,所需的风量相应较小,送风量的取值一般以每小时换气次数来决定。2.单向流的洁净室的风量是以洁净室断面气流流速来确定。无论何种情况的风量计算其主要作用在于限制和减少灰尘对工件或工作区域的污染; 

4.温湿度要求精度高并且恒定。由于电子产品的制造工艺对温、湿度的变化极为敏感,所以空气参数的波动要控制在极小的范围内,因此,自控系统如DDC、PLC等在洁净系统控制中有着不可忽视的作用; 

5.洁净室内换气次数高。新风补给量大。因电子厂房工艺设备有着多种性质的工艺排风,如热、酸、碱、有机气体等因排风量大,这样就需要很大的新风来补给和维持室内的正压,从而保证室内空气不被外界污染。为了维持高洁净度就需要较多的换气次数来过滤尘埃粒子。另外,因电子行业洁净室内部产热量极大而产湿量极小的情况,故需要大量的新风带走热量。 


2 电子洁净厂房中常见的空调系统形式 

    电子洁净厂房的空调系统设计,具有和一般洁净室相同的特点:除尘、防尘、温湿度控制、正压要求、有害气体排放、结构物与隔间的气密性、静电防治、电磁干扰预防、安全因素、节能等。众所周知的形式就是通过空调箱来实现。那么,对于电子洁净厂房的高要求以及其特点,其空调形式又将作如何的变化呢?在这里,我们先简单的介绍,在洁净室一般都会使用的传统净化空调方式 

2.1新风机组+空调机组(AHU)+高效过滤器(HEPA)的空调形式 

    该空调方式指的是室外新风经过新风机组处理后送入混风机组,混风机组把回风与新风混合并处理至所要求的空气参数后直接用风管送风到各终端高效过滤器(HEPA),通常新风机组将新风处理到室内焓值,不承担室内负荷,只承担新风负荷,由混风机组承担室内的湿负荷和显热负荷,空调方式示意图见图1。

2.2空调机组(AHU)加风机过滤器单元(FFU)的空气处理形式

    此方案中的空调机组承担了所有热(冷)湿负荷的处理,包括室内负荷和新风负荷的处理,还要进行初、中效过滤,空调机组的风量就是消除室内热湿负荷所需的风量,FFU的风量就是满足洁净度所需的风量,计算负荷时不要漏了FFU风机的温升形成的负荷,这部分负荷的量也是比较大的,这种空气处理方案是将处理热湿负荷所需的风量和洁净所需的风量分开,这时循环空调箱(AHU)所需的风量就大大的降低了,不仅节省了运行能耗而且还大大的减少了空调机房的面积,减少了庞大的送、回风管的材料和占据的建筑空间,使洁净厂房的总高度可以降低,节约了初投资。图2是其它空气处理过程。

2.3新风机组+干盘管(Dry Coil)+FFU的空调形式 

   新风机组+干盘管+FFU空调方式指的是室外新风经过新风机组处理后送入洁净室的天花技术夹层内,干盘管负责处理空气至所要求的参数,然后用FFU来循环空气从而达到洁净度要求的换气量,通常新风机组将新风处理到室内露点温度,承担新风负荷及室内湿负荷,干盘管承担室内的显热负荷,FFU负责循环及过滤空气。即湿度由新风机组负责,温度由干盘管负责,洁净度由FFU负责,空调方式示意图见图3。

新风机组+干盘管(DC)+FFU的空调形式示意图

图3新风机组+干盘管(DC)+FFU的空调形式示意图

    笔者将要重点介绍的干盘管(DC),就是该系统的重要组成部分。  


3 干盘管在电子洁净厂房中的实际应用  

    干盘管,是一种新型设备还是一种设计,至今业内虽然还存在着争论,但笔者,更加倾向于其是一种设计的说法。原因是,干盘管和一般我们常见的FCU内的盘管相比,就其材质而言,是一样的;就其工作原理而言,亦与普通的FCU内的盘管一样。只不过在有些特定的条件下,有可能需要调整盘管的换热面积和风机风量,让与一般传统的FCU内的盘管有所不同而已,即我们常说的非标产品。 

    干盘管,这个设计概念,最先是由台湾人和日本人想出来的。所谓“干盘管”,是因为在这种系统中,冷冻盘管仅承担显热负荷,其冷冻水进水温度一般在13℃以上,也就是说在室内空气的露点温度以上,盘管一般不可能产生冷凝水,属于干工况运行,所以叫其干盘管。 

    下面,笔者就先从其设计选型说起。 

3.1 干盘管的设计选型 

    先前笔者已经提到了,干盘管与传统的FCU内部的盘管无异,所以其选型的技术参数也是与传统的FCU极为相似,即冷却能力,额定风量,水量,水压损失,重量等。 额定风管的确定:由其洁净室的送风量减去新风量计算而得。根据“洁净厂房设计规范”,不同洁净等级的洁净室,其空气换气次数也是不同的。例如,10万级的洁净室,其空气换气次数一般选择10-15次/小时。 洁净室的送风量应取下列三项中的最大值; 1.为保证空气洁净度等级的送风量; 2.根据热湿负荷计算确定的送风量; 3.向洁净室供给的新鲜空气量。 

洁净室的新风量应取以下两项的最大值: 

1.补偿室内排风量和保持室内正压值所需新鲜空气量之和; 2.保证供给洁净室内每个人每小时的新鲜空气量≥40m3/h。 

    对于电子厂房洁净室来说,室内的工作人员较少,满足人员卫生要求所需新风量要求远小于维持室内正压所需新风量,一般可以根据维持正压和补充排风的要求确定最大的新风风量。另外,值得一提的是,新风还必须承担室内全部湿负荷,保证干盘管正常运行。因此系统的新风量还必须满足: 

GX=W/((dN┸dx)?ρ)                  (1) 

式中:dN和dx分别为新风送风和室内空气的含湿量(kg/kg); 

W为房间的散湿量(kg/h);

ρ为空气密度(kg/m3)。 

    但是,原因笔者在先前在电子洁净厂房的特点4中,已提到了,其产湿量极小。原因即是,电子洁净厂房内的人员很少,而且人员必须经过净化用房换鞋更衣,再经空气淋浴等,方能进入洁净生产用房。其工作人员的工作服装,亦有很好的气密性,可使其人员对外的散湿量降到最低。所以,一般情况下,此数值也远远小于维持正压和补充排风的要求确定最大的新风风量。 

冷却能力的确定: 

    上面笔者已经提到了,其冷冻盘管仅承担室内的显热负荷,可由下式确定: Qgf=QNx┸QXJx= QNx┸GXcpρ(tx┸tN)/3600         (2) 

式中:QNx和QXJx分别为室内和新风所承担的显热负荷(kW);

GX为系统新风量(m3/h); 

cp为新风的定压比热容(kJ/(kg?℃));

 ρ为空气密度(kg/m3); tx为新风送风温度(℃);

tN为室内设计温度(℃)。 

    其中,新风的送风温度,一般我们可以按照,新风空调箱可以处理到的露点温度来计算。 在这里,值得一提的是,有时我们经常会遇到QXJx的数值,比QNx大的情况。一般会由于工艺情况变化等原因造成。此时,我们一般会在新风空调箱内加“再热段”来解决此问题。 水量,水压损失的确定: 

W=Qgf /(cρ(th-tj))               (3) 

式中,W为冷水量(m3/s); 

Qgf为干盘管的显热负荷; 

c为水的比热容,可取4.19kJ/(kg?℃); 

ρ为水的密度,可取1000kg/m3; thw为回水的平均温度(℃); 

tj为供水温度(℃)。

    其中,tj高于室内设计点的露点温度。thw一般以与冷冻机供回水温差匹配为原则,通常为5℃或6℃。 

    水压损失,此参数一般可从厂家提供的样本查询,在此不做详细的说明。下图即是样本中提供的水压损失参数:

    如此,对于干盘管选型最重要的一些参数,就确定下来了。 

3.2 干盘管的换热面积及干盘管排数的确定与FFU风压能力的计算: 

    FFU在洁净厂房吊顶上的布置采用满布的方式,FFU单元的风扇噪音指数叠加将直接影响到洁净室的环境要求。我们将综合好FFU的风压升高引起的噪声升高和干盘管的换热面积及盘管排数作为一个重要指标来考虑。 

3.2.1 干盘管换热面积: 

    干盘管的换热面积可由洁净室循环风量根据面风速法来确定,然而我们这里通常要配合高效送风单元FFU的风压来综合考虑,干盘管的风压损失对整个系统有着至关重要的意义。但是此数据,目前在国内,尚未标准化。我们解决此问题的方法,目前一般还是根据厂家实验室的数据,来确定在不同的送风速度下,干盘管的风压损失。根据厂家的实验数据以及业内的经验,风压损失一般希望控制在15Pa以内(综合盘管排数数据),对于系统的设计来说非常有利。我们可以根据实验室经验数据提供的对应盘管面积下所取得的风速及风压损失来确定设计当中适合的盘管面积。 ()m.capeel.com

3.2.2 干盘管的排数: 

    干盘管排数的增加可以增大盘管与回风的换热效率,然而排数的增加同样又增加了FFU单元的压头负担,这里我们在盘管安装面积允许的情况下优先考虑减少排数的数量,将排数控制在一排到两排较为有利。 

    可见,宽裕的盘管安装面积有利于干盘管FFU系统的换热效率及噪声控制。在洁净室空调系统方案确定阶段就综合考虑到和土建工艺专业的配合非常重要。 


4 实际案例分析: 

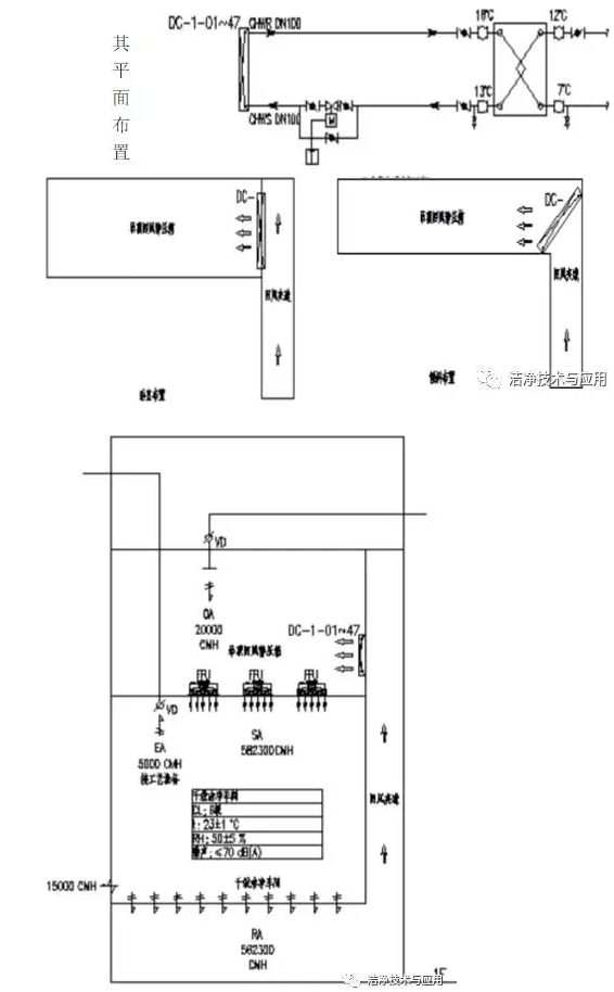
    上海某新建电子厂房建筑面积12341m2,其中生产厂房内洁净区域分为ISO06和ISO07两个级别的净化要求。其中ISO06洁净区域范围为一层生产车间,净化面积约为1941 m2。通过负荷软件计算,除去室内新风所需承担的显热冷量,干盘管所需承担的为450KW,然后根据公式(3),可算出干盘管水流量75m3/h(其中供回水温差为5℃)。 

    一层千级洁净区域室内设计参数为:温度23±1 °C,湿度50±5 %。采用独立新风机组MAU+干盘管DC+末端FFU系统,室内回风经地板及回风夹道经过干盘管降温处理送入吊顶与新风混合后经由末端FFU送入室内,气流组织型式为上送下回形式。过滤器效率为:DOP效率η>99.97(@0.3μm)。房间的循环风量按50次/h计算。在四层空调机房内设置全新风空调MAU。新风经MAU处理(新风,初效过滤,中效过滤,降温除湿/加热加湿,再热处理)后,送入吊顶内静压箱。 

    由于本案例案例中,送风量为保证空气洁净度等级的送风量,新风量为补偿室内排风量和保持室内正压值所需新鲜空气量之和。两者之差,即总回风量为562300 m3/h,根据平面布置情况,选择干盘管数量为47片,单片经过的风量为11964 m3/h,按1.5m/s的风速确定单片干盘管面积为2.3m2,单片冷量为9.58kw,进水温度为13°C,大于23°C,50%所对应的等湿线露点温度,温差选择为5°C,单片水量为1.6m3/h。   

 下图即为该厂房的原理图:


电子厂房的原理图

    图如下:干盘管均匀布置于厂房四周的回风吊顶内,回风经回风夹道进入吊顶回风箱之前先经过干盘管。布置干盘管一般建议采用垂直于风向布置,在风道面积不够的情况下可采用有角度的布置方式。

干盘管设计选型结果如下:

干盘管设计选型结果

5 干盘管的控制及常见施工问题: 

    干盘管通过水量控制来实现室内温度控制,按照区域将吊顶内的干盘管分成固定的几组,根据室内温度传感器控制的结果来控制相对区域单组盘管的阀门开度,从而达到控制温度的效果。 

    按照设计理论来说,干盘管是在干工况下运行的,是不会有冷凝水的,但是一个净化房间在刚开空调机的时候,干盘管在进入正常干工况之前的那一段时间内是在湿工况下运行的,即使凝结水量很少,笔者还是建议要设置凝结水盘及排水管,保证不滴水漏水,而且如果干盘管需要清洗或者排空,也有排水设施可用,所以尽量考虑设置凝结水盘及排水管; 

6 干盘管系统的优缺点比较: 

    空调机组(AHU)加风机过滤器单元(FFU)与新风机组+干盘管(DC)+FFU的区别在于省略了回风管,下面就传统净化空调方式与盘管+FFU净化方式的汇总

净化空调方式比较汇总表

7 结束语: 

    干盘管,虽早已不是什么新兴事物,但是其设备样本,设计计算等,至今尚未标准化。许多尚需通过经验或厂家实验来确定。最近,笔者看到国内的一些厂家,已经开始提供干盘管系列的样本,虽然只有照片,材质等信息,但是这一变化,必是其标准化路上的必经之路。相信经过设计人员、生产厂家等的共同努力,干盘管的标准化,必会迎来其“春天”。 

    电子电路行业的飞速发展,洁净室的使用将会越来越广泛,而净化空调方式的选择则显得尤为重要,由于常规系统(新风机组+混风机组+高效过滤器)存在着运行能耗高、建筑空间要求大、管线交叉多等缺点,我们有理由推荐使用新型净化空调方式(新风机组+干盘管+FFU),其节能效果是明显优于常规系统的,建筑空间要求小,管线也不多,并且综合造价和成本与常规系统相差已经不大,相信在不久的将来会更低,所以新风机组+干盘管+FFU 净化空调方式的实施是具有现实可行性的。 

    随着空调技术的发展,净化空调的设计方式必然会更多,只要我们认真了解系统,有针对性地进行研究,相信电子厂房净化空调方式的选择会不断更新,并且能够不断完善,能够再进一步的降低能源成本。



原文来源:无尘无菌洁净室专家  微信号:rfilter   //m.capeel.com/


更多
相关文章:
Tags:

上一条:浅谈洁净厂房防火设计下一条:探讨单侧下回风局部百级洁净区的影响因素
首页 | 关于我们 | 解决方案 | 工程案例 | 客户中心 | 1946浼熷痉bet | 1946浼熷痉 | 1946浼熷痉澶囩敤缃戝潃
深圳、佛山、东莞、中山、江门、惠州、广州净化工程公司|无尘车间|洁净室|无尘室|净化车间|净化厂房|洁净厂房|洁净车间|洁净棚|GMP车间|GMP厂房等空调洁净工程施工及服务
拓展阅读:10万级净化车间标准|实验动物房|中央厨房|洁净室换气次数|洁净手术室规范|GMP洁净度等级|食品生产卫生规范|洁净厂房施工要点|无尘车间着装规范
Copyright © 2012-2018
Baidu
map