《洁净厂房施工综合技术》
郑玉柱
洁净技术及玷污控制技术,实际上常用玷污控制(Contamination Control)一词。其全面的概念应是:对加工或处理对象在加工处理过程中,由于玷污物质的存在,影响对象的成功率,而对到达对象表面的玷污物质进行控制后,能提高对象的成功率,此有效控制玷污物质(亦包括加工或处理对象带有对人体有害的玷污物质需进行处理及隔离)的技术称为洁净技术或玷污控制。
洁净技术与玷污物质的控制方法因加工处理的对象而异。如精密机械加工要求控制工件表面的粒子尺寸及浓度,一般都以控制空气中的粒子尺寸及其浓度来解决;医疗、卫生、制药等以控制空气中的粒子尺寸及其浓度和微生物数来解决;而IC生产随着集成度的提高,线宽的减少,当前要求严格控制硅表面的粒子尺寸及其浓度、有机物质、金属物质、吸附的某些分子以及硅片本身的氧化。因此除了控制洁净室空气中的粒子尺寸及其浓度并有机物质外,还须控制工艺介质如高纯水、高纯气体、特种气体及化学品(液)内的粒子尺寸及其浓度、金属物质、有机物质及某些气体不纯物质。
因此,洁净技术涉及的内容范围是很广的,可以是洁净室技术的研究、开发;洁净室各系统(壁板系统、吊顶系统、地板系统、空气净化及空调系统以及其它服务系统(如洁净工作服、洁净室专用抹布等消耗品)的研究、开发、设计、应用设计、安装、运行及管理等的介绍及经验总结;洁净厂房施工技术仅为此领域内容之一。
洁净厂房的设计与施工在科技高速发展的今天,已成为一门专业学科被大家所重视并被广泛研究,在洁净厂房内生产的相关产品即象征着它的高品质与其高科技。此项施工技术适用于制药、医疗、核电站、微电子、化妆品、食品与饮料、实验室、航空、生物工程、精密机械加工、印刷等有洁净等级要求的工程施工。
洁净厂房设计及施工技术具有三个显著特点,即科技含量高、施工难度大、新技术及新材料应用广泛。特别是对材料的性能、耐腐蚀性、气密性以及施工节点的处理等要求甚高。本文将主要围绕上述特点分系统进行阐述。
在洁净室的建造过程中,始终有粉尘产生,仅靠施工最终阶段的清理是无法清理干净的,而这些无法被清除的赃物、灰尘会付在洁净室的表面。在洁净室开始起用时,付在室内表面的灰尘会在室内空间飞散,由此而增大过滤器的初期负荷,以至缩短过滤器的寿命。
所以在洁净室的施工过程中,需采取相应措施,最大程度地减轻洁净室的初期负荷,尽早达到洁净室的性能要求是很重要的。
1.2.1垃圾、灰尘等不得带入洁净室内。
1.2.2在洁净室内不允许产生垃圾、尘土。
1.2.3一旦发生灰尘,应立即清扫、排除,不得使其扩散。
1.2.4防止赃物、灰尘堆积。
|
|
||||||||
|
|
||||||||
|
|
||||||||
摘选自(中华人民共和国行业标准《洁净室施工及验收规》JGJ 71-90)
2.2.1洁净室的工程验收宜分为两个阶段进行,即先进行竣工验收,再进行综合性能全面评定。
2.2.2竣工验收和综合性能全面评定必须对洁净室进行性能检测。
2.2.3竣工验收的检测和调整应在空态或静态下进行。综合性能全面评定的检测状态,由建设、设计和施工单位三方协商确定。任何一种检测得出的洁净度级别,必须注明检测状态。
2.2.4在空态及静态条件下检测时,室内检测人员不应多于2人,均必须穿洁净工作服,尽量少走动。
2.2.5竣工验收和综合性能全面评定由建设单位负责,设计、施工单位配合。
2.2.6竣工验收应在对各分部工程做外观检查、单机试运转、系统联合试运转,空态或静态条件下的洁净室性能检测和调整以及对有关的施工检查记录审查合格后进行。
2.2.7洁净室各分部工程的外观检查应符合下列要求:
a.各种管道、自动灭火装置及净化空调设备(空调器、风机、净化空调机组、高效空气过滤器和空气吹淋室等)的安装应正确、牢固、严密,其偏差应符合有关规定;
b.高、中效空气过滤器与风管连接及风管与设备的连接处应有可靠密封;
c.各类调节装置应严密、调节灵活、操作方便;
d.净化空调器、静压箱、风管系统及送、回风口无灰尘;
e.洁净室的内墙面、吊顶表面和地面,应光滑、平整、色泽均匀,不起灰尘;地板无静电现象;
f.送、回风口及各类末端装置、各类管道、照明及动力线配管以及工艺设备等穿越洁净室时,穿越处的密封处理应可靠严密;
g.洁净室内各类配电盘、柜和进入洁净室的电气管线管口应可靠密封;
h.各种刷涂保温工程应符合有关规定;
2.2.8净化空调器或空调器、排风系统、局部净化设备(各类洁净工作台、静电自净器、洁净干燥箱等)、空气吹淋室、余压阀、真空吸尘清扫设备、烟感、温感火灾自动报警装置、自动灭火装置、净化空调自动调节装置和其他有试运转要求的设备的单机试运转,应符合设备技术文件的有关规定,属于机械设备的共性要求,还应符合现行国家标准《建筑安装工程质量检验评定标准》TJ305(通用机械设备安装工程)的规定和机械设备施工安装方面有关行业标准的规定。

3.2.1开工前
1)开工前必须对公司的职员、管理人员及作业人员进行有关洁净室的知识、施工方法及作业程序等的教育,提高认识。
2)使所有施工人员了解洁净区域的划分及各区域的洁净等级。
3.2.2壁(砖)、抹灰工程
关于施工材料的放置与养护,要在开工前对公司的职员、管理人员及作业人员进行有关洁净室的知识以及施工方法、作业程序等的教育,提高认识。
1)严禁在洁净区域内进行水泥砂浆搅拌、切断配管、套丝等作业。
2)为保证气密,砖墙灰缝要充分填实。
3)不须要材料要随时清除,不可长时间放置在洁净区。
4)为避免墙剔凿及暗埋配管等的返工,设备、电气要作好同建筑方面的配合协调工作,经事先确认后再施工。
3.2.3天棚装修
1)天棚的装饰材料(石膏板、轻钢龙骨)要在洁净区外加工并清扫干净后搬入到指定场所,且不能长时间放置,应尽快安装。
2)在洁净区内,禁止进行石膏板、轻钢龙骨的切割等作业。
3)不须要材料不要长时间放置在洁净区,应随时清除。
4)为避免墙壁剔凿及暗埋配管等的返工,设备、电气要同建筑方面很好地配合协调,经事先确认后再施工。
3.2.4洁净室内建筑、设备的施工。
1)洁净区域的出入口,只限定在一处。
2)作业人员的工作着装要干净、整齐。在出入口处设置空压机,将作业人员衣服、鞋上以及带入洁净区的材料、机具等的泥、灰尘等吹扫干净之后才可进入。
3)在洁净室天棚石膏板上切割电气及设备用开口(出风口、回风口、杨声器等)时,为使切割时的粉未不落在洁净区内,要边切割边用吸尘器贴在切割处清除粉未。
4)设备、电气的风管、配管与天棚及墙壁贯通部位的密封施工,要严格按洁净室施工要领书的要求实施。
5)为避免墙壁剔凿及暗埋配管等的返工,设备、电气要同建筑方面很好地进行配合协调,经事先确认后再施工。
当天施工结束后,必须将现场清理
3.2.5洁净室的净化管理(施工结束后)
1)入门卡片管理
A)在洁净区域入口处,配置专人管理。
B)工作人员要配戴胸卡,登记公司名、本人名、作业内容及出入时间
2)规定进入洁净区域内的工作人员行走及材料、器具移动的路线。
3)更换专用鞋。专用鞋架要与普通鞋架分开放置。
4)作业人员所着工作服要干净整齐。
5)洁净室进入净化阶段后,一切产生灰尘的作业都要禁止,不得已非要进行产生灰尘的作业时,需同负责人进行协调,将作业区域封闭隔离并在施工同时用吸尘器除尘。
6)洁净室内禁止休息、吸烟、饮食。
3.2.6试运转、调试前
用吸尘器清扫洁净室时,要按照先天 棚后墙壁,由室内向门口移动的顺序进行。洁净区域的清扫也按照由室内向出入口移动的顺序进行。
|
|
|
|||
|
|
|
|||
|
|
||||
|
|
||||
|
|
|
|||
|
|
|
|||
|
|
|
|||
|
|
||||
|
|
||||
|
|
||||
|
|
||||
|
|
|
|||
|
|
||||
|
|
||||
|
|
|
|||
|
|
|
|||
|
|
||||
|
|
||||
|
|
||||
|
|
||||
|
|
||||
|
|
||||
|
|
||||
|
|
||||
|
|
||||
|
6 高效过滤器 |
||||
|
|
||||
|
|
||||
|
|
||||
|
|
||||
|
|
||||
|
|
||||
|
|
||||
|
|
||||
|
|
||||
|
|
||||
|
|
||||
|
|
||||
4.1.3施工阶段洁净室污染因素与净化需注意事项-3(空调系统)
|
|
|||
|
.室内清扫和管道内的清洁、空气清洁等在确保减少无负荷的基础上实施安装。 |
|||
|
|
|||
|
|
|||
|
|
|||
(附页1~5)
洁净厂房所用的装修材料在选型时应区别于一般工业与民用建筑。在满足相关材料验收标准的同时,后者侧重于观感的要求;而前者则观感与性能兼而有之,即在选型过程中既要考虑满足业主、设计对观感效果的要求,同时更要保证材料本身符合洁净室性能的要求。
目前,市场上装修材料种类繁多,同类别的材料就有若干种,如何在众多的同类材料中选择一种外观、性能、质量均符合上述双重要求的产品,是洁净厂房施工前需重点考虑的问题,也是洁净厂房成功施工的前提条件。因此,特将洁净厂房的材料(特指装修材料)选型作为独立章节进行简单阐述。
|
项目 |
使用部位 |
要 求 |
材料举例 |
||
|
吊顶 |
墙面 |
地面 |
|||
|
发尘性 |
√ |
√ |
√ |
材料本身发尘量少 |
金属板材、聚脂类表面装修材料、涂料 |
|
耐磨性 |
|
√ |
√ |
磨损量少 |
水磨石、半硬质塑料板、环氧树脂地面 |
|
耐水性 |
√ |
√ |
√ |
受水浸不变形、不变质、可用水清洗 |
铝合金板材 |
|
耐腐蚀性 |
√ |
√ |
√ |
按不同介质选用对应材料 |
树脂类耐腐蚀材料 |
|
防霉性 |
√ |
√ |
√ |
不受温度、湿度变化而霉变 |
防霉涂料 |
|
防静电 |
√ |
√ |
√ |
电阻值低、不易带电带电后可迅速衰减 |
防静电塑料贴面板、镶金属丝水磨石 |
|
耐湿性 |
√ |
√ |
|
不易吸水变质、材料不易老化 |
涂料 |
|
光滑性 |
√ |
√ |
√ |
表面光滑、不易 附着灰尘 |
涂料、金属、塑料贴面板 |
|
施 工 |
√ |
√ |
√ |
加工、施工方便 |
|
|
经济性 |
√ |
√ |
√ |
价格便宜 |
|
1.2.1选用气密性良好,且依温度变化变形小的材料;墙壁内装需加轻钢龙骨及保温材时,要采用非燃烧材或难燃烧料;
1.2.2洁净室房间的内墙及吊顶表面,应平滑、光洁、不产生微纹、避免反光、耐腐蚀,在墙壁和底板的拐角做成圆滑形。轻钢龙骨做隔墙,要防止冲撞措施;
1.2.3关于洁净房间的底板,应整体良好、平滑,具有耐磨耗性、耐腐蚀性及耐冲击性。另外,应有防静电及易清洗除尘的功能;
1.2.4以轻钢龙骨作为技术检查空间时,在其空间内敷设维修通道至排出口;
1.2.5洁净房间及人员洁净室的外墙窗户,要有良好的气密性,有防止漏气及结露的功能;
1.2.6洁净房间的门窗形状为简单、平滑、不易留存尘土、容易清扫的结构;不要设门槛;并且为防止因潮气产生细菌或门窗变形,洁净区域内的门窗不能使用木制品;
1.2.7洁净房间的窗要向空气洁净度级别高的房间方向打开,并为便于一般设备的安装、修理及交换,窗户应有足够的大小;
1.2.8洁净房间安装门窗的内墙面应平整,尽可能不要窗台。如有窗台,为防止存留尘土,且清扫方便,要尽可能做成斜面;
1.2.10洁净房间内的墙壁和吊顶的涂料应难燃、防裂、耐腐蚀、耐磨耗、表面平滑,采用吸水不变质、不发生霉菌的涂料;
1.2.11洁净房间的色彩应淡雅、柔和、有协调感。另外,室内各表面的装修材料的光反射尔数,吊顶及墙面为0.6~0.8,地面可为0.15~0.35。
备注:
(1)地面中还可选择现制水磨石、半硬质塑料板等地板材料;
(2)洁净等级较高房间(》10000级)墙面与顶棚首选金属壁板材;
因洁净室内日常需要进行消毒处理,因此,对于用于洁净室的涂料的耐腐蚀性、耐酸碱性要求较高。在涂料选择时不同于一般工程的选择方式,即只侧重与色彩的选择。洁净房间内的墙壁和吊顶的涂料应难燃、防裂、耐腐蚀、耐磨耗、表面平滑,采用吸水不变质、不发生霉菌的涂料。
※试验说明:
对各厂家提供样板的试验分为两步:第一步为药液浸泡;第二步为高湿环境测试。
第一步:药液浸泡
将各品牌的样板同时放入下述三种药液48小时,取出后观察其表面变化,三种溶液配制为:
氯化苄烷氨盐1:100;葡糖酸氯乙烷1:200;纯酒精
上述三种溶液是“第一制药”工厂将来生产过程中,需经常使用的消毒药液(不同性质的工厂需另行选定)。经过48小时浸泡后,样板表面会出现不同程度的变化,如脱落、褶皱、起泡、变色等。
第二步:高湿环境测试 (原文链接://m.capeel.com/a-78/)
选择药液浸泡过程中无变化样板放入高湿环境中(工地混凝土试块养护室即可)。测试时间为七天。
※价格为选型过程中的重要因素,下面附页1~3中为部分铝合金、钢制门窗各厂商报价对比分析表,此方式很实用。
洁净厂房对地板系统要求整体性好、平整、耐磨、耐撞击,不易积聚静电、易除尘清洗。作为不同用途的洁净厂房,其内部使用功能均可大致划分为生产区、包装区、储存区、废物(液)存放区,根据各区域使用功能的不同,对地板材料又作了不同要求。
在第一制药工程地面材料选型时,考虑日后的施工管理,将环氧树脂自流平材料、防尘涂料、防腐涂料、耐磨地面一同考虑(即尽量选择一家产品及施工)。由于四种材料需用量大、造价高,因此吸引了许多厂商参与本工程的竞标;加之本工程为日方兴建、管理的工程,如果竞标成功,日方严格的管理、高洁净等级等都会为其在未来市场的竞争中增加一份较重的砝码。为此,各厂商在选型过程中均给予了积极的配合,提供了大量、详尽的资料。尽管大成建设(日本)最终指定日本“NMB”之相关产品,但各厂商的所提供的资料、报价为我公司将来在此类材料的选择上提供了重要依据。
※ 各厂商的详细情况见下表,特别关注价格差异;
※ 本文下面所述地面相关内容均结合NMB之产品进行;
(一)环氧树脂自流平地面(2mm厚)
|
厂家名称 |
主材产地 |
用量 (Kg/ m2) |
材料单价 (元/ m2) |
施工资质 |
综合单价 (元/ m2) |
在北京业绩 |
|
上海骏浩 |
日本ABC |
2.4 |
300.1 |
有 |
325.1 |
未知 |
|
江苏装和 |
美国陶氏 |
2.94 |
183.45 |
有 |
213.45 |
四环制药等 |
|
北京威博尔 |
台湾柏林 |
2.6 |
R288/Y218 |
无 |
338/268 |
无 |
|
北京大陆桥 |
德国礼诺 |
6 |
175 |
无 |
215 |
无 |
|
北京西卡 |
德国 |
3.6 |
150.84 |
无 |
208 |
无 |
|
阿莫雷斯 |
英国 |
1.7 |
224 |
待核实 |
240 |
无 |
|
*NMB(日本) |
日本 |
2.2 |
200 |
无 |
280 |
天津武田制药 |
|
SMB(中国) |
上海 |
2.2 |
150 |
无 |
195 |
保洁公司 |
(二)防尘涂料(计划0.6mm厚,实际为0.2mm)
|
厂家名称 |
主材产地 |
用量 (Kg/ m2) |
材料单价 |
施工资质 |
综合单价 |
在北京业绩 |
|
上海骏浩 |
Daw+ciba |
0.65 |
39 |
有 |
45 |
未知 |
|
江苏装和 |
美国陶氏 |
|
|
有 |
140.24 |
华靳制药等 |
|
北京威博尔 |
台湾柏林 |
0.9 |
115 |
无 |
155 |
无 |
|
北京大陆桥 |
德国礼诺 |
0.8 |
81+15 |
无 |
98+15 |
无 |
|
北京西卡 |
德国 |
0.4 |
56 |
无 |
84 |
无 |
|
阿莫雷斯 |
英国 |
0.42 |
57 |
待核实 |
67 |
无 |
|
*NMB(日本) |
日本 |
业主直接自日本购(价格不详) |
||||
|
SMB(中国) |
新加坡 |
0.8 |
42 |
无 |
62 |
三河电厂 |
(三)耐磨损地面(1.5mm厚)
|
厂家名称 |
主材产地 |
用量 (Kg/ m2) |
材料单价 |
施工资质 |
综合单价 |
在北京业绩 |
|
上海骏浩 |
日本ABC |
2 |
43(撒硬化剂) |
有 |
43 |
未知 |
|
江苏装和 |
美国陶氏 |
5.8 |
132.48 |
有 |
138.84 |
四环制药等 |
|
北京威博尔 |
台湾柏林 |
1.7 |
156 |
无 |
196 |
无 |
|
北京大陆桥 |
德国礼诺 |
6 |
45 |
无 |
60 |
无 |
|
北京西卡 |
德国 |
3 |
118.05 |
无 |
170 |
无 |
|
阿莫雷斯 |
英国 |
5 |
46 |
待核实 |
54 |
东方家园等 |
|
*SMB(中国) |
日本 |
5 |
50 |
无 |
65 |
第一制药 |
注:a.*--表示选用(指定)产品。
b.乙烯脂树脂类特殊耐腐蚀地面:FRP,厚度约0.2mm,未统计。
环氧树脂自流平地面具有高强度、抗化学品和生物制品腐蚀、耐磨性、耐久性、表面平滑、无污染、多色泽选择、易于清洗等显著特点。可广泛应用于有洁净、耐侵蚀、长寿命要求的室内地面。环氧树脂自流平地面适用强,能很好的满足洁净厂房的要求,且具有其他地面材料无法取代的施工方式。使用此类材料及施工方式,在满足使用功能的前提下,施工速度快,一次成活率高,对施工工期有可靠的保证。
|
对比项目 |
传统涂刷 |
自流平施工 |
|
搅拌 |
人工配料,人工搅拌,一次搅拌量小,易发生结团、固化的爆聚现象。 |
人工配料,机械搅拌,一次搅拌量较人工搅拌大,且搅拌均匀,不发生爆聚现象。 |
|
基层 |
基层修补24小时后方可施工底层涂漆。 |
基层修补12小时后可进行底漆施工。 |
|
底漆 |
底漆完成后24后施工中漆。 |
底漆完成12小时可施工中层漆。 |
|
面层 |
人工涂刷罩面漆,一次施工面积不大,且无流平性,表面容易留下刮板痕迹或高低不平。 |
罩面漆采用自流平施工,可进行大面积施工,靠自流平找平,一次成活。地面整体性好于人工涂刷施工。 |
|
养护 |
养护7天方可交付使用。 |
养护4天可交付使用。 |
|
表面 |
交付使用前打腊一次,以提高表面光洁度和色彩效果。 |
无需打腊,色彩艳丽,光洁度好。 |
2.2.1工艺层次图
2.2.2工艺流程图
2.3.1基层材料:基层处理用铁砂。
目的:将地面进行毛面处理、解决混凝土(或砂浆)起砂现象。
2.3.2底层涂漆:根据材料说明将环氧型主剂与硬化剂按规定配比搅拌均匀。
目的:界面处理,增强底涂与基层的附着力。底涂以溶剂型底涂“底涂-ST”为标准,“底涂-ST”是两种液体按下表混合使用:
|
型号 |
配合比(质量比) |
|
|
主剂 |
硬化剂 |
|
|
溶剂型 |
1 |
1 |
2.3.3中层涂漆:自流平环氧树脂内掺硬化剂。
目的:对底层进行修补,增强底涂与面层的附着力,提高表面平整效果。“POLYDECK100”(简称“PD100”)是着色环氧树脂为主要成份的产品。由两种液体按下表混合使用:
|
商品 |
配合比(质量比) |
|
|
主剂 |
硬化剂 |
|
|
POLYDECK |
5 |
1 |
2.3.4面涂:环氧树脂主剂与硬化剂及硅砂按规定比例进行充分、均匀搅拌。
目的:满足使用效果。
POLYDECK100自流平为“PD100”和6#石英干砂按下表混合使用。混合时请使用NMB式手摇搅拌器。
|
|
配合比(质量比) |
|
|
PD100 |
6#石英干砂 |
|
|
自流平 |
2 |
1 |
2.3.5施工机械及工具
喷砂机、地面打磨机、切缝机、三角砂轮、消泡滚筒、锯齿刮水器、含水率测试亦、钢制刮片、专用抹刀、吸尘器、搅拌器、毛巾等。
2.4.1基层处理
(1)混凝土地面或砂浆地面施工完毕干燥时间必须在28天以上,干燥状态检查要使用“砂浆水分仪”测量,地面含水率必须在8%以下。
(2)地面浮砂、浮尘、油脂、异物经过打磨机进行打磨、清除,并用吸尘器吸干净。
(3)地面凸出部分要打磨平整,凹部和裂缝部分要用环氧树脂类腻子修复平整。为保证腻子充分渗入基底,基层修补完成12小时后才可以底漆施工。
(4)在底涂施工前,重点检查项目包括:打胶分格缝、踢脚、门口边缘、周围门窗及吊顶预留口是否封闭等,确认无误后方可进行底涂施工。
2.4.2底层涂漆
底涂要按主剂和硬化剂规定的比例来计算。用电动撑机充分搅拌后,均匀用油漆筒可毛刷涂布。底涂渗透力很强的地方要再次涂布。
(1)根据材料使用说明,将底漆按规定配比用电动搅拌机充分搅拌,均匀涂在基层表面,底涂渗透力很强的地方需再次涂刷,12小时后进行下道工序施工。
(2)在进行中涂之前,应对地涂进行检查,对地面凹凸部位及裂纹进行平整修补,12小时后进行下道工序施工。
2.4.3中层涂漆
将中层涂漆按规定配比进行充分搅拌,使用专用抹刀均匀涂布在底漆表面,12小时后进行下道工序施工。
2.4.4自流平面层
将面层涂漆按规定配比进行充分搅拌,均匀涂布在中层表面,24小时后进行保护层施工。
保护材料按配比充分搅拌,均匀涂布在面层表面,24小时以内禁止上人,完全固化需一周时间。
(1) “PD100材料”冬季施工粘必很大,为提高作业性和施工效果,请尽量提高室温,施工温度为50C以上。
(2) PD100材料夏季施工,材料的要使用时间较短,为配合施工速度,要调整好混全数量。
2.5.1质量标准:自流平地面表面应平整、洁净。用2m直尺检查允许空隙不大于2mm,表面颜色、光泽应符合设计要求。
2.5.2施工环境:
(1)为提高作业性和施工效果,施工环境温度要求高于5℃,最理想施工温度为15℃~25℃。
(2)进行地面施工过程中,严格控制灰尘的侵入,非操作人员禁止进入施工面。
(3) “PD100”材料在施工后地面完全硬化之前不能行走和有灰尘等的侵入。养护时间,夏季大约为3天,冬季大约为5天。
高性能混凝土地面美装材料(UREXYN-700C)是一种经改性的着色丙烯酸环氧树脂。UREXYN -700C是由二种液体材料组成,主剂和硬化剂的重量配合比例为8:1使用时应接说明书进行。
UREXYN-700C的施工,通常分为下层涂敷和上层涂敷的二次涂敷作业。下层涂敷是在地面调整材料完全硬化以后进行,将UREXYN 700C的主剂和硬化剂按规定配合比混合,而后用短毛辊简或者毛刷等均匀涂敷。上层涂敷是在下层涂敷的UREXYN-700C完全硬化之后约2-8小时按上述同样的要领进行涂敷。UREXYN- 700C是溶剂型树脂,每次涂敷量控制在0.15kg /m2以下当进行二次涂敷以上的多层涂敷时,必须在确认了涂敷层完全硬化之后。
UREXYN-700C施工简图如下所示:
在施工了UREXYN-700C的地面尚未达到完全硬化时,应禁止通行并应在避免灰尘等吹入和使其在不遭受污染的条件下进行养护。养护期间为夏季二天,冬季五天。
3.4.1在冬季施工UREXYN-700C时,为提高其作业性和表面美装性,尽可能在可提高材料温度和室温条件下施工。
3.4.2 UREXYN-700C的上层涂饰,必须在确认下层涂敷的树脂完全硬化后再进行。
3.4.3对于进行了地面调整后仍产生烈缝的地方,可以薄薄地涂一层UREXYN-700C,并确认是否被渗入。如有被渗入的情况,则要使用腻子修补。
3.4.4在换气条件差的地主施工时,应设排气装置。倘其中皮肤、腿睛不慎被沾附UREXYN-700C,可用中性清洁剂进行清洗。
4.1.1底涂
底涂是一种将高质量乙烯酯树脂,改性为低黏度的由日本麦斯特建材公司(株)生产的“PRLMER—86N”的材料。使用时添加硬化剂和硬化促进剂,均一混全。底涂的标准配比表:
|
树脂种类 |
硬化剂、 促进剂种类 |
环境温度和硬化剂,促进剂的添加量(%) |
|||||
|
30℃ |
25℃ |
20℃ |
15℃ |
10℃ |
5℃ |
||
|
底涂-86N |
PAMECK-N |
1.0 |
1.2 |
1.5 |
1.5 |
1.5 |
2.0 |
|
环烷酸钴 |
0.5 |
0.5 |
0.5 |
0.5 |
0.5 |
0.5 |
|
|
促进剂D |
? |
- |
- |
0.3 |
1.0 |
1.5 |
|
注意:标准配合比是相对树脂的重量百分比
4.1.2特殊耐腐蚀层用树脂
以高质量的乙烯酯为主要成分的由日本麦斯特建材公司(株)生产的“POLYXYN 500 HC 60N?61N”。下涂,中涂,上涂标准配合比:
|
树脂种类 |
硬化剂、 促进剂种类 |
环境温度和硬化剂,促进剂的添加量(%) |
|||||
|
30℃ |
25℃ |
20℃ |
15℃ |
10℃ |
5℃ |
||
|
500HC60N:61N-1:1或1:3 |
PAMECK-N |
1.0 |
1.2 |
1.5 |
1.5 |
1.5 |
2.0 |
|
环烷酸钴 |
0.5 |
0.5 |
0.5 |
0.5 |
0.5 |
0.5 |
|
|
促进剂D |
? |
- |
- |
0.5 |
1.0 |
1.5 |
|
注意:标准配合比是相对树脂的重量百分比
4.1.3层叠材料
FRP施工法所用的玻璃纤维布是根据JTs R 3411所规定的EM450(450g/M2)表面布是使用30g/M2的布为标准的。
4.1.4其他
1)进行着色工序时,树脂里添加7%“POLYXYN 500 HC”用调色剂。
2)在最后涂层用树脂晨,添加4%空气硬化剂(石蜡)
3)根据需要树脂里有时会重新添加环烷酸钴,KOBALUTO
4)层叠材料是复数时,下涂工序反复至规定的层叠数
5)树脂砂浆完成面的施工。树脂是添加10%-12%的KABRECK(盐野义药品公司制品)
6)前面的配合比,操作时间约为30分钟
7)硬化剂和硬化促进剂的比重:PAMECK 1.13; 促进剂D 0.95。
4.1.4标准使用量
“POLYXYN 500 HC”FRP施工法标准使用量
|
工 序 |
标准使用量(kg/m2) |
|
|
底涂 |
|
0.25 |
|
下涂和表面布的敷垫 |
下涂,浸透,脱泡 |
1.4 |
|
|
玻璃布 |
1.1(m2/m2) |
|
中涂和表面布的敷垫 |
中涂,浸透,脱泡 |
0.7 |
|
表面布 |
1.1(m2/m2) |
|
|
上涂表面布 |
0.25 |
|
|
上涂(涂层) |
0.25 |
|
“POLYXYN 500 HC”FRP 施工法是根据下图所示的施工细节来进行.
4.3.1地面调整
1)砼或砂浆地面尽量全面打磨,要将附着在上面的浮浆,油脂及其他污物除掉。
2)施工面的凸部,通过打磨使其平整,另外,凹部和有裂缝的地方,施工前首先要底涂涂布。然后用腻子材料调整至平整。地面调整,请不要用水泥类表面调整材料和环氧树脂类材料。含造成剥离和硬化不良的原因。
3)砼或吵浆地面含水率10%以下(用水分仪来测量)。
4)在立而施工时,在地面和立面的拐角处应事先加工出R=30-40毫米的圆弧。
4.3.2底 涂
使用油漆滚筒或油漆刷均匀地进行涂布,不要漏涂。涂布面要涂得有光泽。因此,底涂被地面吸收泛自时,应再次涂布。
4.3.3下涂和玻璃纤维布的敷垫
1)在施工场所纵向平行地弹出墨线,玻璃纤维布的施工宽度为1米
2)将玻璃纤维布截成宽度为1.04米×4.04米的尺寸。另外,叠合处要按不同的尺寸进行调整。
3)下涂按配比混合树脂,在弹出墨线的地方用涂料滚筒或毛刷进行均匀涂刷。
4)接着,敷垫玻璃纤维布时,注意不要敷得起皱。
5)敷垫好玻璃纤维布后,要立即用涂料滚筒或毛刷涂刷,浸透树脂。并用脱泡滚筒进行密实。
6)在接口处用同样的操作,敷垫玻璃纤维布。
7)树脂充分硬化后,对凸部和起毛处进行打磨,凹部用树脂腻子进行批刮。
4.3.4中涂和表面布的敷垫
1)中涂按表-2所示的配合比混合树脂,用涂料滚筒或毛刷涂刷。
2)中涂后要立即敷垫表面布,注意不要起皱,接着用涂料滚筒或毛
刷涂刷,浸透树脂,再用脱泡滚筒进行密实。另外,也有表面布和玻璃纤维布同时敷垫的施工法。
3)中涂的树脂硬化后如有凸部和起毛,轻轻地进行打磨调整。
4.3.5上涂
1) 上涂,按表-2所示的配合比混合树脂后,再添加7%的着色材料进行着色。用滚筒或毛刷均匀地涂刷1-2次。
2)在进行最后的涂层时,要添加4%的空气硬化剂。
用“POLYXYN 500 HC”施工后的地面,禁止在完全硬化前行走,养护时要防止灰尘、雨水等的侵入。养护时间夏天是2-3天,冬天4-5天。
在目前超净化区域设计时,墙面及顶棚材料首选不燃型金属壁板,即以防火石膏板、岩棉、聚苯等不燃材料为基材,以彩色钢板为板面,亦称彩色夹心钢板。钢板为镀锌钢板,厚度一般在0.6mm左右,表面进行喷塑处理;根据建筑设计,壁板可制作成相应规格,一般宽度1150mm,长度≤5500mm,厚度一般在控制在12.5mm~150mm之间。配合金属壁板施工的金属件很多,如天地槽、工字铝、铝合金阴角、铝合金阳角、门窗框料等,基本为铝制品。目前,国外与国内各厂商之产品形式、安装方式基本相同。
洁净室内平面与立面之间阴阳角部位的连接是影响洁净等级的关键部位之一。金属壁板及其连接节点作为超净化区域重要组成部分,已被广泛应用于此类工程中。
但上述形式的铝合金阴阳角只限于各种金属壁板与金属壁板之间的安装,但对于壁板与非壁板之间的连接、非壁板与非壁板之间的连接无法有效解决。在“第一制药”工程超净化区域施工过程中,中日双方结合工程实际情况对金属壁板及连接节点进行了局部改进,特别是通过对现有铝合金阴阳角材的改进,可突破洁净区域必须用金属壁板这一局限、增大材料选型面。改进后的阴阳角材可将房间内各种材料墙面与各种吊顶装饰面进行有效连接,不仅提高洁净区域内的气密性,而且可大大降低建造成本,将洁净区域适用范围进行扩展,在其他用途的建筑物内也可以广泛应用。
2.1.1本文所阐述的改进技术仅限用于十万级以上洁净区域(含十万级)。万级以内(含万级)超级净化区域必须选用金属壁板。
2.1.2采用非金属壁板时,所用材料的设计及选型慎为重要,所选材料必须满足GMP等相关标准的要求,各部位的连接必须进行详细设计。
2.1.3施工前需制定有针对性的技术保证措施、加强过程控制、提高管理力度、严格材料的进场验收手续。
2.1.4在十万级洁净区域使用非金属壁板时,施工中所有检查项目均要提高验收标准。特别应注意抹灰(砌筑墙体)、刮腻子(石膏板等轻质隔墙)的施工质量,例如砌筑墙体的灰缝宽度及砂浆饱满度、非金属壁板轻质隔墙的各部位连接是否牢固、面层与基层结合强度、墙面与顶棚的平整度等等都要认真予以考虑。
改进后的铝合金阴阳角可适用于洁净室内轻钢龙骨石膏板墙面与轻钢龙骨石膏板吊顶、抹灰砂浆墙面与轻钢龙骨石膏板吊顶等常用材料之间的连接。以后者为例(参见上图),其安装工艺流程如下:
2.4施工时应注意问题
2.4.1严格控制墙面抹灰砂浆的配合比,砂浆搅拌时掺入适量的建筑胶,以避免抹灰层的开裂、空鼓。且抹灰层分两次进行,每次厚度控制在10mm左右。第二层抹至吊顶下口。
2.4.2墙面、吊顶应使用防水腻子,施工时腻子不能刮得过厚。
2.4.3用于墙面、吊顶的涂料,选型时应对其耐酸碱性、耐久性、反光性、与基层防水腻子的粘接性等进行严格测试,确保此涂料符合GMP标准的要求。
2.4.4用于铝合金角材两侧的密封胶宜选用“聚硫物”密封胶(详密封胶部分)。
通过上述改进前后的施工节点对比,可清晰地看到后者应用范围的广泛性。在进行超净化区域设计与施工中材料的选择范围加大,除选择金属壁板外,也可从石膏板、硅酸钙板、砌筑抹灰隔墙等方式中进行选择。
而将金属壁板与其他板材进行最佳组合,不仅可以满足洁净等级要求非常高的区域,且大大降低投资额。例如:一个建筑物内同时存在十万级和万级,在进行设计时可在万级部分采用金属壁板、在十万级区域使用砌筑隔墙或其他轻质隔墙,而非统统投入金属壁板。
假定有一建筑面积10000m2的生产厂房,其中十万级、万级超洁净区域的墙板和顶板共计3000 m2,且十万级、万级分别占2000 m2和1000 m2,通过下面的计算,节约的费用可一目了然:
注:180砌筑砖墙:包含红机砖、20mm抹灰砂浆、高质量的防水腻子及涂料、阴阳角用铝型材、踢脚用环氧树脂砂浆。
作为投资者在建设超净化工厂时主要会考虑两个方面的内容:
其一,如何保证建造的超净化区域能够满足GMP等相关标准,生产出预想的高品质、得到认可的产品;
其二,如何在满足上述条件下降低投资额,使现有的资金发挥其最大效益;
通过上述分析对比,作为投资者可选择范围加大,并且应用改进后的施工技术,对于十万级以上的区域亦可广泛应用,且为许多新兴行业生产厂房的建造提供了较为成熟的设计与施工经验。
若要保证某一区域达到相关洁净等级要求,房间的气密性是最为根本的条件,而房间的气密性又通过使用各类密封胶来实现。
目前,建筑装修(装饰)工程中常用的密封胶主要有:硅酮类密封胶、聚硫物密封胶、聚氨脂类密封胶。
① 此表引用于日本东しチオュ┼ル株式会社“基本耐药品性对比”。
② 试验条件:样品规格25mmx50mmx3mm;浸润室温x28日。
③ 试验品:聚硫物密封胶—日本东しチオコ-ル株式会社之トプコ-ルS产品、硅酮类密封胶和聚氨脂类密封胶使用的是市场销售品。
④ 判定:◎--变化微小;?—膨胀及缩小变化小;△--膨胀中度,溶解小;?--膨胀大,变质。
通过上表对三种密封胶各项性能指数综合对比及使用效果可得出:聚硫物密封胶比硅酮类密封胶和聚氨脂类密封胶更适合用于洁净厂房装修中这一结论。其原因主要有以下几点:
1)聚硫物密封胶具有优良的粘结力,对多种物体和环境有广泛的适应性。
聚硫物密封胶的耐腐蚀性优于硅酮密封胶、,对各种药品具有优良的耐药性,即使在化学、汽车、电气工厂等恶劣的条件下,也可发挥出卓越的性能。
2)聚硫物密封胶在施工中不污染接缝周围装饰面,表面不吸附灰尘,便于日后清洁。
3)硅酮密封胶在室内使用时产生大量刺激性酸味,必需经过长时间才能散去,医药行业之《药品生产质量管理规范》(GMP标准)对此是不允许的。
4)聚硫物密封胶防菌性能通过试验结果比较,明显好于硅酮密封胶(即使加入防菌剂),且硅酮密封胶容易产生霉菌,这点违背GMP标准要求。
壁板与壁板、壁板与吊顶壁板、壁板与地面、壁板配套门窗安装等部位通过聚硫密封胶保证其密闭性。(施工节点详见第3部分中图形)
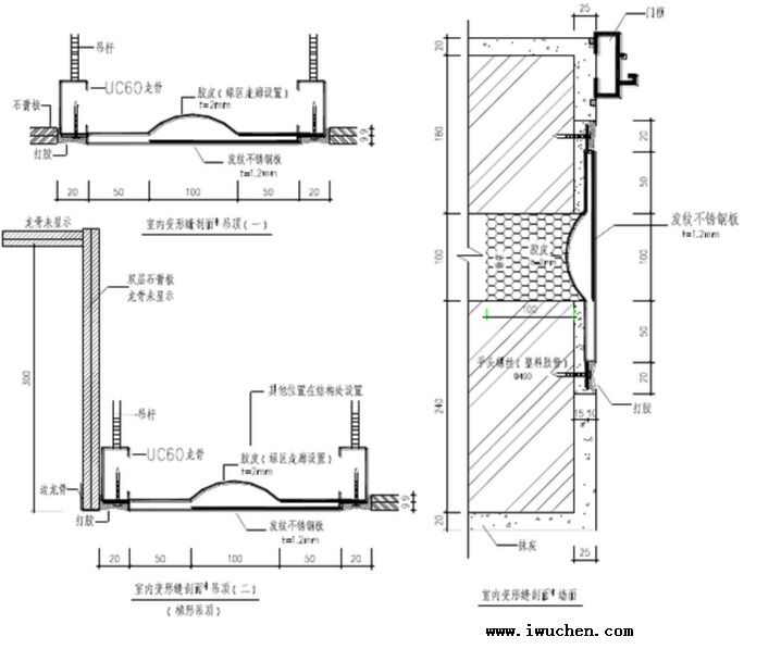
在对有洁净要求的建筑物变形缝部位进行处理时,应同时考虑建筑物伸缩变形、房间内气密、装饰效果、日常维护方便四个问题,按常规做法无法同时满足上述要求。第一制药工程通过拉丝不锈钢板和聚硫密封胶的配合使用,使问题得到解决。
(1)室内变形缝
(2)室外变形缝
(3)屋面变形缝
*室外工程对密封胶的性能提出了更高要求,特别是粘结力、耐酸与耐碱性、抗老化性等。
聚硫密封胶除在上述部位大量使用外,室内还有诸多部位通过此类密封胶很好的解决了洁净区域的气密、开裂和装饰效果等问题。如仓库区大面积双层石膏板安装、各种电气设备四周、室内外收缩缝等部位均通过密封胶同时解决了气密、外观的要求。
“超净化”施工属我公司“1999-2001三年科技发展规划”中重点解决的特殊行业施工技术之一。通过对我公司近期完成的“第一制药”工程主要洁净施工技术总结,以期对之予以补充和完善;同时,增强我公司在此类工程承揽方面的市场竞争能力。
目 录
前 言..........................................................1
第1部分 洁净施工技术综述........................................2
1.洁净施工目的与原则............................................2
1.1洁净施工目的..............................................................2
1.2洁净施工基本原则..........................................................2
2.洁净施工要求与标准............................................2
2.1洁净室装饰表面质量要求一览表..............................................2
2.2工程验收..................................................................3
3.洁净厂房施工程序与管理........................................4
3.1洁净室主要施工程序........................................................4
3.2分段施工管理步骤..........................................................4
4.洁净净化措施与施工计划........................................6
4.1洁净施工措施..............................................................6
4.2洁净施工计划..............................................................9
第2部分 洁净厂房材料选型........................................10
1.洁净室对装修材料的基本要求与选用.............................10
1.1性能要求.................................................................10
1.2基本条件.................................................................10
1.3洁净室装修做法材料选用表(部分).........................................11
2.选型程序与步骤...............................................12
2.1涂料举例.................................................................12
2.2门窗选型程序.............................................................13
第3部分 地板系统................................................13
1.地板材料综述.................................................13
2.环氧树脂自流平地面...........................................15
2.1传统涂刷与自流平施工对比.................................................15
2.2工艺层次与流程...........................................................15
2.3材料配制与工具...........................................................16
2.4分层施工.................................................................17
2.5质量标准及保证...........................................................17
3.防尘涂装.....................................................18
3.1材 料...................................................................18
3.2施 工...................................................................18
3.3养 护...................................................................19
3.4施工上注意点.............................................................19
4.特殊耐腐蚀地面...............................................19
4.1材 料...................................................................19
4.2施工层次.................................................................20
4.3施工过程.................................................................21
4.4养 护....................................................................21
第4部分 墙壁与顶棚...............................................22
1.金属壁板.....................................................22
1.1壁板与壁板阴阳角连接.....................................................22
1.2壁板与窗之间连接.........................................................22
1.3壁板与地面连接...........................................................23
2.非壁板类材料在洁净室中的应用.................................23
2.1改进技术应用说明.........................................................23
2.2非壁板连接节点...........................................................24
2.3改进后安装工艺...........................................................24
2.5经济效益分析.............................................................25
2.6.社会效益分析............................................................25
第5部分 密封胶在洁净室中的应用技术...............................26
1.密封胶的选择.................................................26
1.1三种密封胶耐药性比较表...................................................26
1.2对比结果分析............................................................26
2.聚硫密封胶应用举例...........................................27
2.1墙面、顶棚的密闭连接.....................................................27
2.2变形缝气密连接...........................................................27
结束语............................................................30
<洁净施工计划(附页1~5)................................................9/10
<门窗报价对比分析(附页1~3)...........................................13/14
文章来源://m.capeel.com/